Ref.: 6294

Exclusiva Casa amb construcció a la zona del Tarter

Andorra - Tarter (El) | Xalet-Torre

Superfície
283 m2
dormitoris
4
banys
4
Preu
2.995.000 €

Demani més informació sobre Exclusiva Casa amb construcció a la zona del Tarter

Ref.: 6294

| 6294

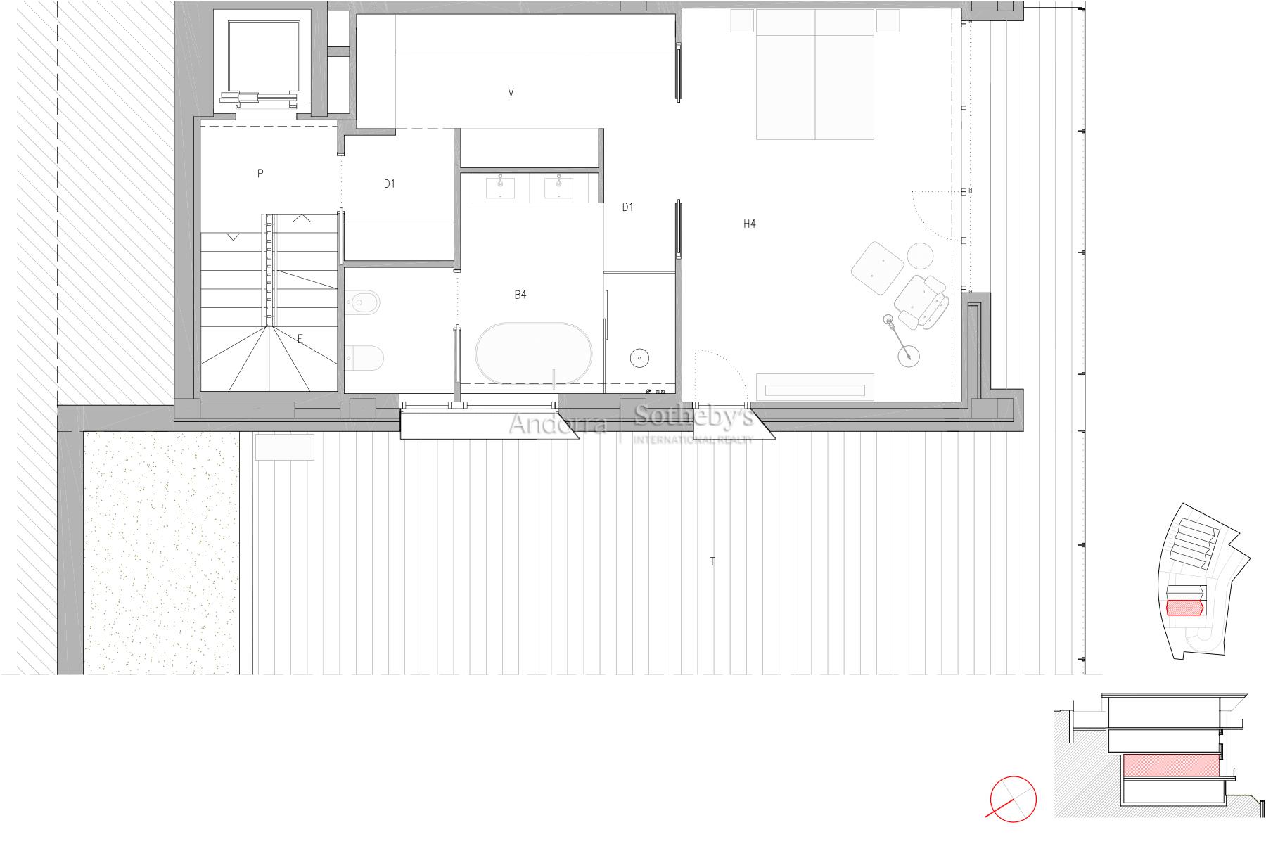
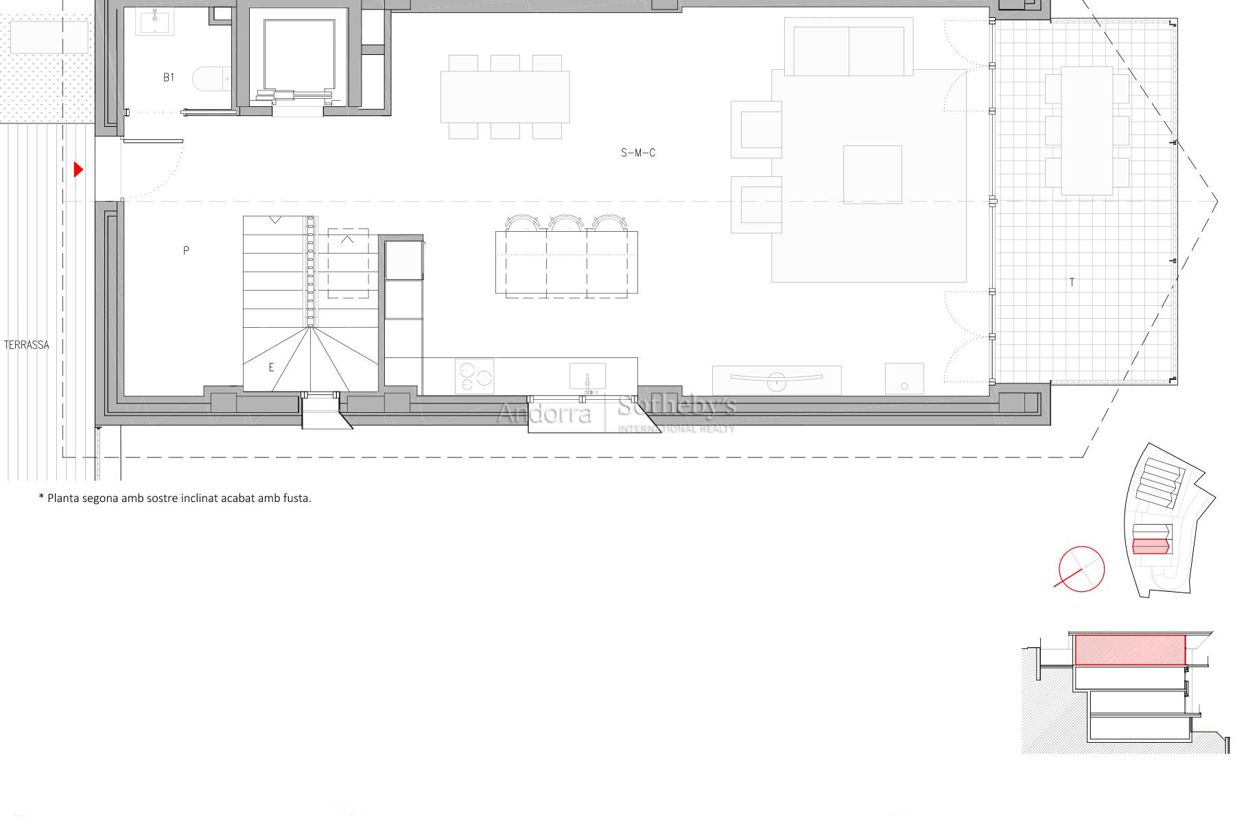
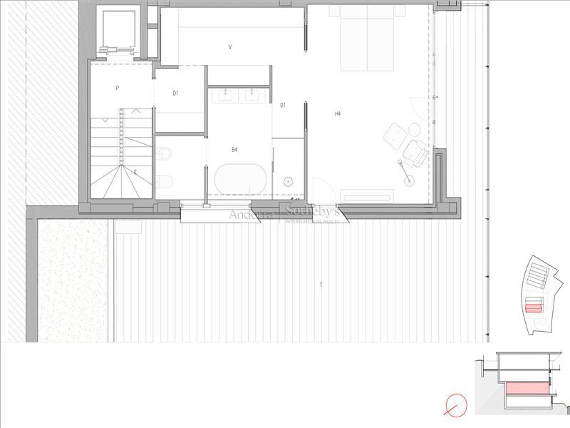
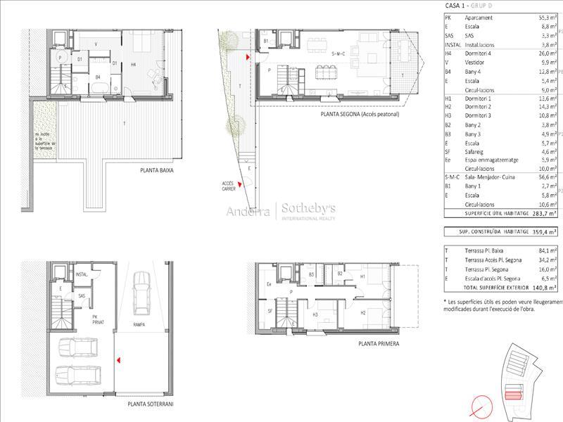
Exclusiva casa de nova construcció situada a La Pleta del Solà del Tarter, una de les zones residencials més demandades per la seva proximitat a les pistes d’esquí de Grandvalira i el seu entorn natural privilegiat. L’habitatge compta amb una superfície construïda de 359,4 m², dels quals 283,7 m² són útils habitables, i una àmplia superfície exterior de 140,8 m² distribuïda en diverses terrasses: una de 84,1 m², una altra de 34,2 m², una de 16 m² i una escala exterior de 6,5 m². La casa disposa de quatre habitacions i quatre banys, oferint espais amplis, lluminosos i pensats per al confort. La zona de dia inclou un espai de saló-menjador amb cuina oberta, ideal per crear un ambient integrat i funcional. També compta amb zona de safareig independent i un garatge tancat de 55 m², amb capacitat per a diversos vehicles. L'habitatge ofereix acabats de qualitat i una arquitectura moderna, pensada per integrar-se amb l'entorn i aprofitar al màxim la llum natural i les vistes. *Les superfícies útils es poden veure lleugerament modificades durant l’execució de l’obra.

Característiques

  • walk-in closet(s)
  • Safareig
  • Planta diàfana
  • Ascensor adaptat cadira de rodes
  • A peu de pistes
  • Doble vidre
  • Assolellat
  • Terrassa
  • Calefacció
  • Jardí
  • Vistes a la muntanya
  • Transport públic aprop
  • Zona verda
  • Aigua calenta
  • Parking cobert

Calificacio Energetica A

Distàncies

A menys de 5km

  • Ransol 1,3 km
  • Incles 1,3 km
  • Aldosa (L' ) (Canillo) 2,4 km
  • Soldeu 3,0 km

A menys de 10km

  • Canillo 5,4 km
  • Prats 6,6 km
  • Forn (El) 8,2 km

A la capital

  • Escaldes-Engordany 15,5 km
  • Andorra la Vella 16,6 km

Següents passos

Contacti amb el nostre equip de consultors immobiliaris per saber més sobre aquesta exclusiva promoció.

Demani més informació sobre Exclusiva Casa amb construcció a la zona del Tarter

Ref.: 6294