Ref.: 6424

Apartamento exclusivo para alquilar en Soldeu, a pie de pistas

Andorra - Soldeu | Apartamento

Superficie
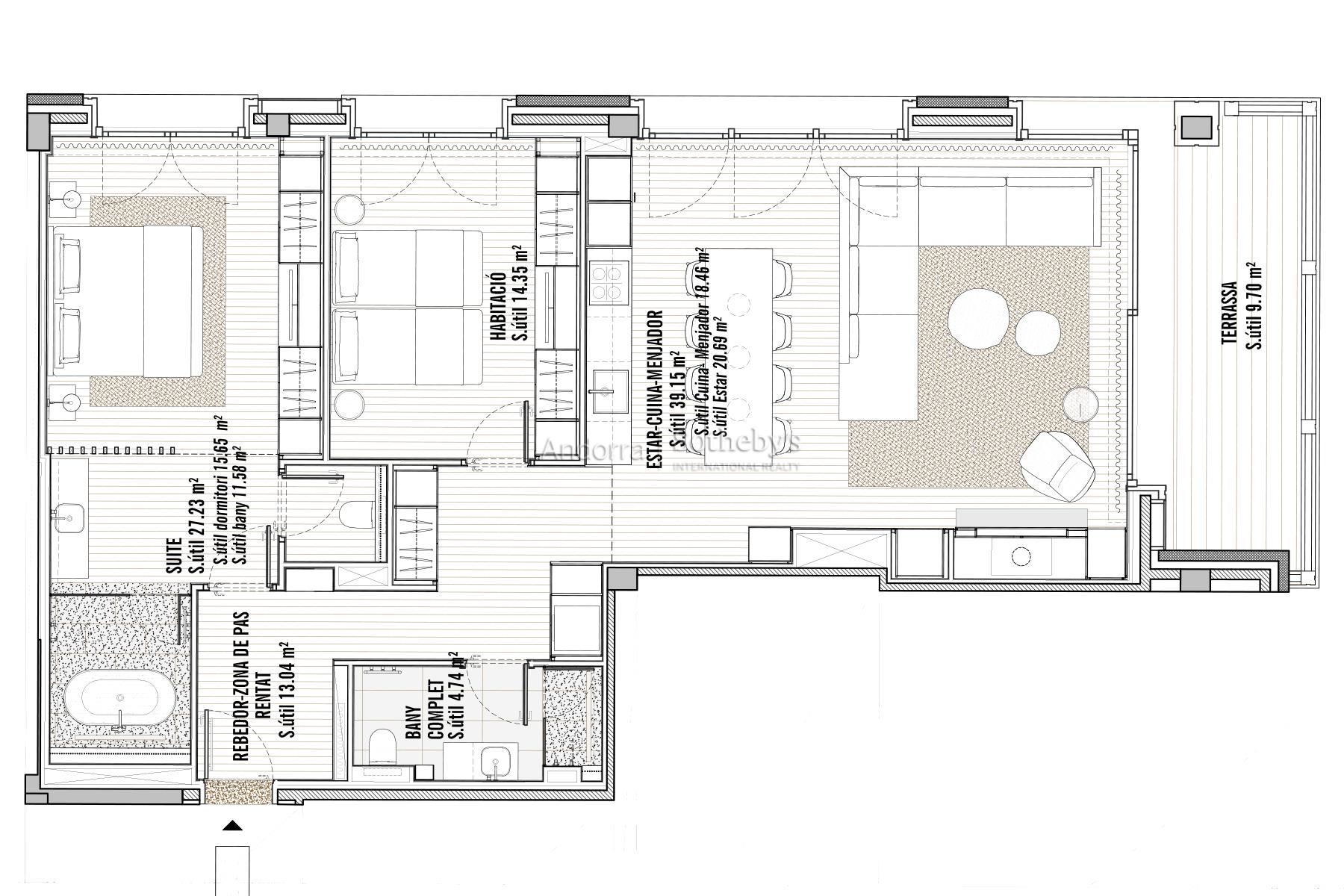
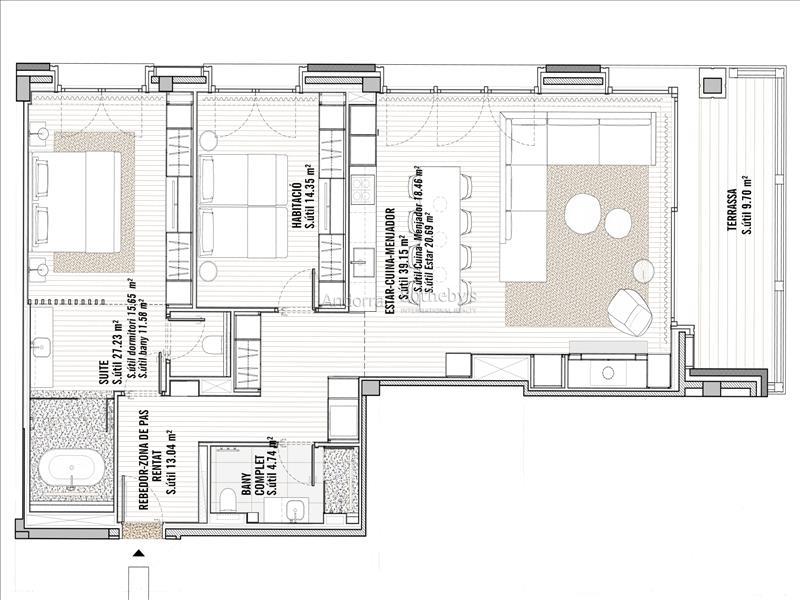
120 m2
dormitorios
2
baños
2
Precio

Solicite más información sobre Apartamento exclusivo para alquilar en Soldeu, a pie de pistas

Ref.: 6424

| 6424

Bienvenidos a un auténtico refugio de lujo en el corazón de los imponentes Pirineos, a pocos pasos de las impresionantes pistas de esquí del encantador pueblo de Soldeu. Este exclusivo apartamento ofrece una experiencia inigualable, donde la naturaleza se combina con un diseño contemporáneo, creando el espacio perfecto para quienes buscan serenidad y sofisticación. Con una superficie de 120 m² meticulosamente diseñada, esta propiedad destaca por su estructura que respira naturaleza, utilizando madera de pino autóctono y piedra local que se integran armoniosamente en el paisaje circundante. La cocina de concepto abierto se conecta con un salón espacioso, fomentando la creación de momentos memorables en un ambiente acogedor y elegante. Este apartamento cuenta con dos habitaciones, incluyendo una suite principal y una habitación doble, así como dos baños completos (uno de ellos en la suite). Cada rincón ha sido cuidadosamente diseñado para garantizar la máxima comodidad y funcionalidad. Con la terraza de 9 m², los residentes pueden deleitarse con las espectaculares vistas a las pistas de esquí de Grandvalira y disfrutar de la belleza en todas las estaciones del año. Los amplios ventanales, estratégicamente orientados, permiten que la luz natural inunde el espacio, sumergiendo cada estancia en la calma y la majestuosidad de las cumbres nevadas. Además, este magnífico apartamento incluye una plaza de aparcamiento privada con capacidad para dos vehículos, brindando comodidad y fácil acceso en todo momento. Vive la magia de este espacio único, donde la naturaleza no solo se contempla sino que se siente y se celebra. Una lugar excepcional para quienes desean fusionarse con la esencia pura de la vida en el corazón de las montañas andorranas.

Características

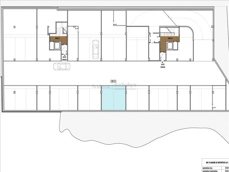
  • Parking con plaza doble
  • Parking puerta automática
  • Parking cubierto
  • Amueblado
  • A pie de pistas
  • Armarios empotrados
  • Soleado
  • Terraza
  • Calefacción
  • Parking
  • Ascensor
  • Vistas a la montaña
  • Transporte público cerca
  • Chimenea
  • Zona verde
  • Agua caliente

Calificacion Energetica A

Distancias

A menos de 5km

  • Incles 1,0 km
  • Tarter (El) 3,0 km
  • Ransol 3,7 km
  • Aldosa (L' ) (Canillo) 4,3 km

A menos de 10km

  • Canillo 7,5 km
  • Prats 8,5 km
  • Pas de la Casa 8,9 km
  • Forn (El) 10,0 km

A la capital

  • Escaldes-Engordany 17,4 km
  • Andorra la Vella 19,0 km

Siguientes pasos

Contacte con nuestro equipo de consultores inmobiliarios para saber más sobre esta exclusiva promoción.

Solicite más información sobre Apartamento exclusivo para alquilar en Soldeu, a pie de pistas

Ref.: 6424