Ref.: 5816

Exclusiu xalet d´obra nova per comprar a Ordino

Andorra - Ordino | Xalet-Torre

Superfície
669 m2
dormitoris
5
banys
5
Preu
6.156.546 €

Demani més informació sobre Exclusiu xalet d´obra nova per comprar a Ordino

Ref.: 5816

| 5816

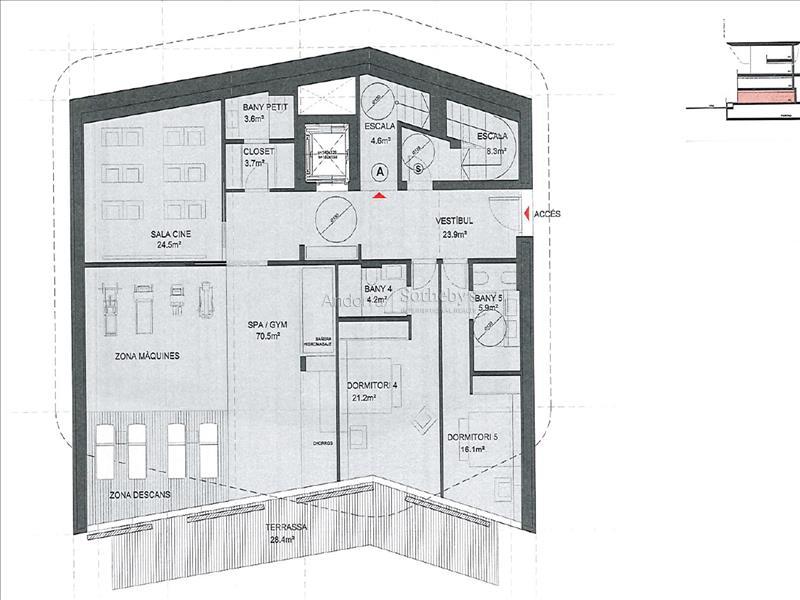
Xalet exclusiu en venda al encantador poble d'Ordino, la primera destinació del Principat d'Andorra designada com a Reserva de la Biosfera. Aquesta sensacional propietat forma part d'una promoció de nova construcció que destaca per la seva ubicació privilegiada així com pel seu disseny luxós, concebut pel prestigiós estudi d'arquitectura Rafael De la-Hoz Arquitectes. Es tracta d'un immoble de nova construcció d'aproximadament 669 m², que inclou diverses terrasses orientades de manera òptima per aportat la màxima exposició possible a la llum natural i gaudir alhora de les magnífiques vistes d'Ordino i les seves valls. La planta baixa està destinada a la desconexió, per la qual cosa compta amb zona de spa i gimnàs, a més d'una sala de cinema. En aquesta planta es troben també dues habitacions dobles en suite amb bany complet, un lavabo i una zona d'emmagatzematge, així com una àmplia terrassa. Al primer pis es troba la continuació de la zona de descans, amb dues habitacions en suite amb bany complet, i la master suite de la propietat, amb vestidor i bany complet. Totes les habitacions tenen sortida a la terrassa. La segona planta està distribuïda en una gran cuina amb illa central, equipada amb les últimes tecnologies i oberta a un acollidor menjador amb accés a la terrassa. En aquesta zona es troben igualment un saló i una biblioteca, ambdós espais també amb sortida a la terrassa, un lavabo i una zona de bugaderia. A la darrera planta, sota laha, hi ha un funcional despatx. La propietat té 8 places d'aparcament de 11,5 m² cadascuna, uns 706 m² d'aparcament. Els acabats són elegants i de la més alta qualitat, i el disseny de la propietat combina elements moderns, com les grans vidrieres, amb l'arquitectura andorrana clàssica en pedra i fusta per integrar-se de la millor manera en l'entorn i no perdre l'essència del país.

Característiques

  • Càmeres de seguretat
  • Safareig
  • Despatx
  • Ascensor adaptat cadira de rodes
  • Armaris encastats
  • Assolellat
  • Cuina tipus office
  • Terrassa
  • Aire condicionat
  • Calefacció
  • Parking
  • Ascensor
  • Alarma
  • Vistes a la muntanya
  • Transport públic aprop
  • Llar de foc
  • Zona verda
  • Aigua calenta
  • Traster

Calificacio Energetica A

Distàncies

A menys de 5km

  • Sornàs 1,1 km
  • Ansalonga 1,6 km
  • Aldosa (L' ) (La Massana) 2,1 km
  • La Cortinada 2,5 km
  • La Massana 2,6 km
  • Arans 3,4 km
  • Escas 3,7 km
  • Anyós 5,0 km

A menys de 10km

  • Llorts 5,1 km
  • Xixerella 6,2 km
  • Arinsal 6,7 km
  • Serrat (El) 8,3 km
  • Pal 8,7 km
  • Molleres 9,4 km

A la capital

  • Escaldes-Engordany 8,1 km
  • Andorra la Vella 8,7 km

Següents passos

Contacti amb el nostre equip de consultors immobiliaris per saber més sobre aquesta exclusiva promoció.

Demani més informació sobre Exclusiu xalet d´obra nova per comprar a Ordino

Ref.: 5816